Leistungen

Individuelle Planung

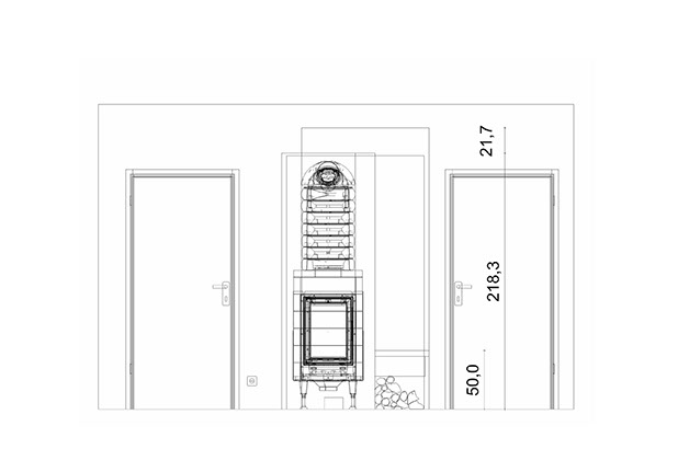
Das Rüegg Studio in Ludwigsfelde wird Sie in Ihrer Planungsphase unterstützen. Im Vorfeld können wir durch eine CAD-Planung eine fotorealistische Umgebung schaffen, in die wir Ihren individuellen Wunschkamin oder Grundofen integrieren. Anhand Ihres Grundrisses können wir eine maßgenaue Bildgestaltung vornehmen. Natürlich bieten wir Ihnen auch eine von Hand gefertigte Skizze an.

Ablauf

Startphase

Der erste Schritt zur Realisierung Ihres Traumkamins ist eine Aufnahme Ihrer Wünsche, Ziele und Ideen. In einem Gespräch mit Ihnen lernen wir Sie, Ihre Wohnsituation und Räumlichkeiten kennen. Wir hören Ihre Wünsche und Vorstellungen. Gemeinsam stimmen wir die erforderlichen Planungsarbeiten und die nächsten Schritte ab. Wichtig ist, dass Ihr Wunschkamin die Ausstrahlung Ihres Hauses ergänzt und sich integriert.

Wohnsituation, Lebensstil und Architektur wollen sorgsam inszeniert werden, um perfekt wirken zu können. Bereits vorhandene, oft ältere Gebäudeteile wie z.B. Treppen können stilvoll mit eingebunden werden und lassen neue Eindrücke entstehen.

 

Entwurf

Auf Grundlage unseres ersten Gespräches und dem von Ihnen zur Verfügung gestellten technischen Zeichnungen entwerfen wir Ihnen eine dreidimensionalen und maßstabgerechten Entwurf. Aus diesem Entwurf können Sie sofort ablesen, wie sich Ihr Traumkamin in Ihr Haus einfügen wird. Der Verlauf der Linien, die Anordnung von Bank, Flächen und Holzfach können Sie so schon recht realistisch erleben, das Knistern des Feuers und den Blick ins Flammenspiel jedoch erst später.

Nach dieser Präsentation und Ihrer Zustimmung ist dieser Entwurf Grundlage für alle weiteren Maßnahmen zur Realisierung Ihres Traumkamins.

 

Material

Nach Ihrer Freigabe des Entwurfes bestimmen wir anhand Ihrer Wünsche zusammen  welche Materialien verbaut werden sollen. Wir berücksichtigen bei der Materialauswahl die vorhandenen Farben und Materialien des Hauses und Ihren Anspruch an Wärmespeicherfähigkeit.

 

Bau

Wir übernehmen die Bauausführung vom Anschluss bis zum ersten Feuer.Vor Baubeginn führen wir die vorbereitenden Gespräche mit den anderen Gewerken sofern dies nötig ist, gern mit dem Architekt, Polier oder Vorarbeiter der Ihr Bauvorhaben unterstützt. So können Sie sich schon entspannen bevor Ihr Traumkamin fertig ist.

 

Jetzt fehlt nur noch der Termin für die Feuertaufe.

Einbau

Beim Einbau eines Kamins sollte ein besonderes Augenmerk bei der Planung liegen und einige wichtige Punkte beachtet werden. Bei einem Neubau kommen Sie am besten frühzeitig in unser Kaminstudio und lassen sich kompetent beraten. Aber auch in fertigen und schon bewohnten Häusern ist ein nachträglicher Einbau oft sehr unkompliziert möglich. Wir beraten Sie gern zu Ihrem Traumkamin.

 

Kamin und Mietwohnung

Sehr oft ist der nachträgliche Kamin- oder Kaminofeneinbau in Altbauten wesentlich unkomplizierter als gedacht. In vielen Fällen lassen sich bereits vorhandene Schornsteinzüge wieder nutzen oder sanieren. In vielen Häusern muss nur ein Zugang zu einem vorhandenen Schornsteinzug hergestellt werden. Bereits vorhandene Züge sind durch Einzug eines Edelstahlrohrs schnell saniert. Immer öfter finden sich Kamine auch in Mietwohnungen, allerdings ist ein nachträglicher Einbau hier vom Vermieter zu genehmigen. Als Mieter können Sie mit der Wertsteigerung der Immobilie durch einen Kamin argumentieren. Das wird Ihren Vermieter höchstwahrscheinlich überzeugen. Und einen Kaminofen können Sie bei einem Umzug sogar einfach in Ihre neue Wohnung mitnehmen.

Reaparatur

Wir planen und bauen nicht nur Ihren individuellen Traumkamin oder -Ofen, sondern  stehen Ihnen auch weiterhin mit unserem Wartungs- und Reparaturservice mit Rat und Tat zur Seite. Wir möchten, dass Sie lange Spass und Freude an ihrem Wunschkamin haben.

KaminZEIT  |  Marco Fürch  |  Nuthedamm 4  |  14974 Ludwigsfelde  |  Tel.: 03378 - 52 39 625  |  Mobil: 0173-23 38 719  |  info@kaminzeit-ludwigsfelde.de